人を幸せにする人になろう
- 日々の雑多な感想や記録を書き留めていくことにします―2008年6月~―
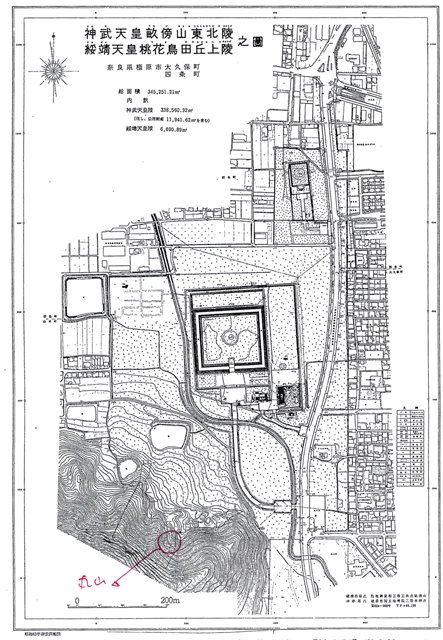
2018年2月23日、陵墓(四条塚山古墳)立入り観察への参加(3)
◆昼ご飯を食べて、14時からの立入り観察に向かう。径16m、高さ3.5m程度
の円丘に、八角の石 柵がめぐる。近世?文献には、石棺の角が見えているといった記載があるらしい。古墳でない、と否定することは難しいよう。
◆神武陵に関する論文などを読み直していないが、当日の説明で学んだこと。元禄期にはこの塚山が神武陵と考えられていたが、幕末に、ミサンザイ(ジブデン)、丸山とする見方が発表され、3か所が候補となり、谷森がミサンザイ説で、決められないので文久2年に孝明天皇がミサンザイに決めたのだとか。当時の様子としては、ミサンザイには小丘2つ、丸山は現状で古墳らしい様子はないらしい。7世紀の神武陵は「畝傍山東北陵」との名称で、それに該当するこの地域で探索が行われたわけである。
◆藤原京建設で削平された四条古墳群は5世紀代を中心とし、径70mの大円墳も削平されている。なんで塚山が残っているのか、という問題。それと石棺か、石室か石槨かわからないが、まあ5世紀代のイメージにはそぐわない。それと、元禄期に神武陵として整備された際に八角形の柵が設けられていることが気にかかる。八角の発想はどこから来るのか、ということ。残丘の円に対して、四角でなく切り詰めて八角にした、そういうことかもしれないが。
◆もっとも古墳らしいもので、径15m程度とはいえ、藤原京造営時に
削平されずに残された。発想を逆転させれば、平らに京域街区を整備した時点で、そのなかに高まりが平然と存在していた、→天武・持統期の神武陵ちゃうんか、と。天武が壬申の乱の時に神武陵に戦勝祈願を行った記事があり、その時にはあった(だったらいつ作られたかというのにもいくつか説があるようだが)とみられているが、これはそのまま信じるわけにはいかないように思う(正当化)。前身があったかなかったか、それはわからんが、王統譜を整備し確定させ記紀をまとめる天武・持統期に、始祖墓を整備することは必然的にあったであろう。それちゃうんか、と。また、造るとすると八角墳だろう、と思う。元禄期に八角の柵を設ける必然性があったんではないか(これは憶測)。
◆神武陵に関する論文などを読み直していないが、当日の説明で学んだこと。元禄期にはこの塚山が神武陵と考えられていたが、幕末に、ミサンザイ(ジブデン)、丸山とする見方が発表され、3か所が候補となり、谷森がミサンザイ説で、決められないので文久2年に孝明天皇がミサンザイに決めたのだとか。当時の様子としては、ミサンザイには小丘2つ、丸山は現状で古墳らしい様子はないらしい。7世紀の神武陵は「畝傍山東北陵」との名称で、それに該当するこの地域で探索が行われたわけである。
◆藤原京建設で削平された四条古墳群は5世紀代を中心とし、径70mの大円墳も削平されている。なんで塚山が残っているのか、という問題。それと石棺か、石室か石槨かわからないが、まあ5世紀代のイメージにはそぐわない。それと、元禄期に神武陵として整備された際に八角形の柵が設けられていることが気にかかる。八角の発想はどこから来るのか、ということ。残丘の円に対して、四角でなく切り詰めて八角にした、そういうことかもしれないが。
◆もっとも古墳らしいもので、径15m程度とはいえ、藤原京造営時に
2018年2月23日、陵墓(四条塚山古墳)立入り観察への参加(1)
◆2月27日、入試の採点業務も終わり、一息ついている。
◆2月23日、神武陵と洞村の見学。元、ミサンザイ。幕末にふたつの小
丘があり、それをコアに神武陵 が作られたのだそうです。そのあと、その西南、畝傍山の東北裾部にあった洞村跡を見学する。100戸を越える大きな村だった。移転前の写真も残っている。
◆その背後の畝傍山山麓に、神武陵のもうひとつの候補であった丸山があるのだが、神武陵の付属地ということで、これは本庁での許可がいるらしく、上がっていくことはできなかった。
◆そのあと「おおくぼふるさと館」に行く。洞村の移転先となった場所にある記念館に行く。明治期に神武陵ができた段階ではそのままだったが、神武陵が拡張整備されていくなかで、それを見下
ろす場所にある洞村が移転することになり、こうした労苦を後世に伝え残す記念館である。元の建物の建築材を切り縮めるなどして移転地に移り、その昔ながらの建物も20年前まではあったようだ。が、なにせ限定された移転地に詰め込まれ道も狭く、20年前に街路を整備しての再開発がなされ、その時にほぼ新しい建物に変わったとのこと。しかし、この記念館のみは元の建物を残し、展示館として開館したものである。
◆2月23日、神武陵と洞村の見学。元、ミサンザイ。幕末にふたつの小
◆その背後の畝傍山山麓に、神武陵のもうひとつの候補であった丸山があるのだが、神武陵の付属地ということで、これは本庁での許可がいるらしく、上がっていくことはできなかった。
◆そのあと「おおくぼふるさと館」に行く。洞村の移転先となった場所にある記念館に行く。明治期に神武陵ができた段階ではそのままだったが、神武陵が拡張整備されていくなかで、それを見下
そのあと現地
◆行ってみました。でかい!。また無謀な・・・。210mはでかいですわ。立ち木の関係も、前のイ
メージよりもあるな~、と。それなりに小さい常緑樹もあってジャマ。汀付近はかなり繁茂。摩湯でもそうでした。それと恥ずかしながら周囲一回りもしておりませんが、堤側はたいへんそうです。
◆で、後円部墳頂でフォトスキャンの実験用の写真を撮りました。86枚撮影し、大学に戻ってやってみかしたが、あきません。たったの6枚しかアラインされない。久津川のぜんぜんダメを反省して、わりとまめに撮ったのですが・・・。どうだろう、全体の1/8くらいしかできてない、というところか。まあ、それでもできないわけではない、くらいの気休めにはなる。85枚を撮るのに5分程度。画像をみながらまた反省。失敗を繰り返しながら、要領をつかんでいきたい。何より撮り方ですね。天候とか明るさにも影響を受けるので、そこは均質な良質画像を着実に撮影することですね(写真を撮ること自体はそう時間はかからないので)。
◆レーザー測量の時、業者は三脚に取り付けた丸い球を4つとか配置して計測している。今回はピンポールに発泡スチロールの球かキューブを取り付けたもの(直方体の場合はマーカーを貼る)を、マッチングのために使おうと思っている(今日は何もまだない)。そして、本日失敗した墳頂なら、とにかくこの範囲と決めた中央部に1個立て、まわりにも3つとか立て、中心部から螺旋状に写真を撮ってみようと思う。今日は、墳頂平坦面を対象に、肩を動きながら内側に向いて写真を撮ったわけだが、逆をやってみようかな、と。
◆で、トータルスターション3チーム、+オレは写真測量、と考えています。まず初日は、基準点の杭を、3チーム分担でぜんぶ打ってしまう。できたところから本測量。測量は院生にすべて任せる。オレはPCとカメラをもって別に動くかな、と。大型前方後円墳を3台のトータルステーションで測るのは、あの古墳以来だな。とにかく、9日間で、墳丘はすべて終えるのを目標とする。あとはスキャナも持ち込んで、毎日、トレースをしてもらおうかとも思っています。
◆なんで宿泊が必要か理由書を出せ、とお役所的ご下命。さっさと出しときましたが・・・。
◆で、後円部墳頂でフォトスキャンの実験用の写真を撮りました。86枚撮影し、大学に戻ってやってみかしたが、あきません。たったの6枚しかアラインされない。久津川のぜんぜんダメを反省して、わりとまめに撮ったのですが・・・。どうだろう、全体の1/8くらいしかできてない、というところか。まあ、それでもできないわけではない、くらいの気休めにはなる。85枚を撮るのに5分程度。画像をみながらまた反省。失敗を繰り返しながら、要領をつかんでいきたい。何より撮り方ですね。天候とか明るさにも影響を受けるので、そこは均質な良質画像を着実に撮影することですね(写真を撮ること自体はそう時間はかからないので)。
◆レーザー測量の時、業者は三脚に取り付けた丸い球を4つとか配置して計測している。今回はピンポールに発泡スチロールの球かキューブを取り付けたもの(直方体の場合はマーカーを貼る)を、マッチングのために使おうと思っている(今日は何もまだない)。そして、本日失敗した墳頂なら、とにかくこの範囲と決めた中央部に1個立て、まわりにも3つとか立て、中心部から螺旋状に写真を撮ってみようと思う。今日は、墳頂平坦面を対象に、肩を動きながら内側に向いて写真を撮ったわけだが、逆をやってみようかな、と。
◆で、トータルスターション3チーム、+オレは写真測量、と考えています。まず初日は、基準点の杭を、3チーム分担でぜんぶ打ってしまう。できたところから本測量。測量は院生にすべて任せる。オレはPCとカメラをもって別に動くかな、と。大型前方後円墳を3台のトータルステーションで測るのは、あの古墳以来だな。とにかく、9日間で、墳丘はすべて終えるのを目標とする。あとはスキャナも持ち込んで、毎日、トレースをしてもらおうかとも思っています。
◆なんで宿泊が必要か理由書を出せ、とお役所的ご下命。さっさと出しときましたが・・・。
岬町に行ってきました
◆2月22日午前。摩湯山の件でFさんと墳丘の話をする。昼過ぎ、岬町に出かけ
る。いくつか確認したい ことがあったのだが、メルアドがわからないので、直接、担当者と話をする方が早いと思い。
◆15時、町道の現場でお会いする。ひとつは基準点測量が間に合わないかもしれないので、任意座標で、国土座標はあとづけでもしゃーないか、と。ただし高さがほしいので、それを聞くのがひとつ。
◆帰ってくると業者からメールが入っており、基準点測量も間に合いそうである。
◆そうそう、3月2日から10日の9日間で、トータルステーション3台(2台はレンタル)、25㎝コンタでやります。
◆もひとつは駐車する場所。結局はないみたい。で、国道沿いに中華料理屋があり、毎日、昼はそこで食って、置かしてもらったら、と。いつも見学の際は、線路沿いのところにコソッと駐車しているが、そこの方に挨拶がてらお願いしようと思っていたのですが、難しいような話だったので、そうするほかないかな、と。ちなみに、南海線の南では、国道から折れて入っていく生活道路の拡幅工事中である。いまやっている現場の町道はその延長になるようである。
◆15時、町道の現場でお会いする。ひとつは基準点測量が間に合わないかもしれないので、任意座標で、国土座標はあとづけでもしゃーないか、と。ただし高さがほしいので、それを聞くのがひとつ。
◆帰ってくると業者からメールが入っており、基準点測量も間に合いそうである。
◆そうそう、3月2日から10日の9日間で、トータルステーション3台(2台はレンタル)、25㎝コンタでやります。
◆もひとつは駐車する場所。結局はないみたい。で、国道沿いに中華料理屋があり、毎日、昼はそこで食って、置かしてもらったら、と。いつも見学の際は、線路沿いのところにコソッと駐車しているが、そこの方に挨拶がてらお願いしようと思っていたのですが、難しいような話だったので、そうするほかないかな、と。ちなみに、南海線の南では、国道から折れて入っていく生活道路の拡幅工事中である。いまやっている現場の町道はその延長になるようである。
2018年2月21日(水)久津川車塚に行ってきました
◆3件の用があった。ひとつはものを取りに行くこと。
◆2つ目は、埴輪のフォトスキャン。いまデータを移しております。45枚の写真、38枚がアラインされ、高密度クラウド、まだPCがやっております。
◆そのあと、車塚現地へ行きました。JR複線化の工事が進んでおります(写真)。昨年の西くびれ部上段の トレンチ、埋め戻し土が流れてトレンチ壁面が少し見えています(写真)。なんと かしないといけません。
◆で、そのあと史跡地外の街路の写真を2時間近く撮影してきたのですが、帰ってきてからフォトスキャン合成をやってますが、なかなかうまくはいきません。どうすりゃいいのかな。写真の撮り方なんでしょうね。あんまりコマギレというわけにはいかないし・・・。西陵のフォトスキ
ャン測量が危ぶまれる。トータルステーション3台で、基本、今まで通りでやるしかないか。
【追記】2時間かけて650枚ほど撮影したが、ぜんぶ使えませんでした。あ~あ。
◆2つ目は、埴輪のフォトスキャン。いまデータを移しております。45枚の写真、38枚がアラインされ、高密度クラウド、まだPCがやっております。
◆そのあと、車塚現地へ行きました。JR複線化の工事が進んでおります(写真)。昨年の西くびれ部上段の トレンチ、埋め戻し土が流れてトレンチ壁面が少し見えています(写真)。なんと かしないといけません。
◆で、そのあと史跡地外の街路の写真を2時間近く撮影してきたのですが、帰ってきてからフォトスキャン合成をやってますが、なかなかうまくはいきません。どうすりゃいいのかな。写真の撮り方なんでしょうね。あんまりコマギレというわけにはいかないし・・・。西陵のフォトスキ
【追記】2時間かけて650枚ほど撮影したが、ぜんぶ使えませんでした。あ~あ。
プラグイン
カレンダー
カテゴリー
フリーエリア
最新コメント
最新記事
(03/16)
(03/13)
(03/13)
(03/10)
(03/10)
最新トラックバック
プロフィール
HN:
雲楽
年齢:
61
性別:
男性
誕生日:
1964/03/22
職業:
大学教員
自己紹介:
兵庫県加古川市生まれ。高校時代に考古学を志す。京都大学に学び、その後、奈良国立文化財研究所勤務。文化庁記念物課を経て、現在、大阪の大学教員やってます。血液型A型。大阪府柏原市在住。