人を幸せにする人になろう
- 日々の雑多な感想や記録を書き留めていくことにします―2008年6月~―
久津川車塚9月10日(木曜日)
◆道上、原田、大澤、土谷、木下、安藤/佐々木、城陽市担当者 橋本清一氏/京都平安文化財
◆第1Q 前日までの雨で水浸し。水替えとともに、ぐちゃぐちゃになっていたシートをほぼめくってやり替える。南区の撮影にむけて清掃、造り出し南西隅を全員でやる。
◆第2Q 結構手間がかかる。造り出し斜面と犬走りを整えつつ作業を進める。南西隅には結構汚い土がかぶる。礫は造り出し斜面でも上層に多く、下層(犬走り近く)になると見られなくなる。京都平安文化財の撮影終了。なお、昼に午後の史跡整備委員会に向けて埴輪を出す。
◆第3Q 造り出し南西隅を続ける。第4Q 1500史跡整備委員会。明日まで天気がいいようなので、埴輪を養生して造り出し上面にシートをかけ、その周りはシートをかけず干すことにする。(by道)
◆なお委員のみなさまの質問に答えます。ぜんぶ地山だと思っています。埋葬施設は当初です。
◆第1Q 前日までの雨で水浸し。水替えとともに、ぐちゃぐちゃになっていたシートをほぼめくってやり替える。南区の撮影にむけて清掃、造り出し南西隅を全員でやる。
◆第2Q 結構手間がかかる。造り出し斜面と犬走りを整えつつ作業を進める。南西隅には結構汚い土がかぶる。礫は造り出し斜面でも上層に多く、下層(犬走り近く)になると見られなくなる。京都平安文化財の撮影終了。なお、昼に午後の史跡整備委員会に向けて埴輪を出す。
◆第3Q 造り出し南西隅を続ける。第4Q 1500史跡整備委員会。明日まで天気がいいようなので、埴輪を養生して造り出し上面にシートをかけ、その周りはシートをかけず干すことにする。(by道)
◆なお委員のみなさまの質問に答えます。ぜんぶ地山だと思っています。埋葬施設は当初です。
久津川車塚9月7日(月曜日)
◆道上、山口、土井・土谷・木下・安藤、+佐々木、+京都平安文化財、城陽市担当者
◆
(第1Q)全員で南区の清掃。先週の段階で半分程度仕上がっていたので、葺石中腹から作業を開始する。前日の雨で下はドロドロであり、相変わらず手間と時間がかかる。(第2Q)1100頃までは学生に南区をやってもらい、1100以降は南区と、造出上面の精査に分かれる。中央区の西斜面と上面の肩の境界部分の黄色土、高まりを下げていく作業。前回調査区北端付近まではやはり礫が多く、礫敷きの残存と思われる。(第3Q)午前の作業を引き続き行う。(第4Q)今回の新規調査範囲の西肩はでこぼこか。平面的にさげても黄色粘土が残り、形にそって掘り進めると赤い面がでてくる。大きく穴が空いてしまいそうな部分もあるがそこは平面的に下げ、様子を見ながら整えて
いく作業となる。南区の石はかなりきれいになるが、濡れている現状ではほぼ限界か。
◆明日で肩部の作業はほぼ終了すると思われるので、北区の造出上面、掘り切れていない範囲を精査していく。オルソー画像作成の撮影は、北辺、西斜面、南辺上部は終了するも、清掃が追いつかず、南区深掘り部は明日になる。(by道)
◆
◆明日で肩部の作業はほぼ終了すると思われるので、北区の造出上面、掘り切れていない範囲を精査していく。オルソー画像作成の撮影は、北辺、西斜面、南辺上部は終了するも、清掃が追いつかず、南区深掘り部は明日になる。(by道)
大阪城サウンディング調査
◆本日から。昨日あわただしく計画線を確認し、どういう手順になるんだろうとイメージを考え、
まあなんとかなると現地へ。計画線に沿ってラインを設定し、起点を決めて1mごとに予定位置の印をつけていく。南北線がかなり振ってしまったが。
◆そんなんで始まりました。径2㎝程度のもので、陸軍時代のものとか表層近くでガラに当たってしまえばしゃーないわけだが、多少の礫程度なら捩り出して抜けていく。一定の深度でのN値が高くなった硬い層の解釈は難しいながらも遺構面かもしれない。機械がガラにあたって震えたり、変な音がしたり、入りにくくなるとハンマーで叩くのだが、その音がいかにも高く「硬!」と悲鳴を上げたり、なかなか反応を見ているのも楽しいもので
ある。
◆5日これで拘束されるのは、車塚があるので避けたいのだが、今日の様子を見ていると、水曜日には終わるのではないかと思われる。
◆そんなんで始まりました。径2㎝程度のもので、陸軍時代のものとか表層近くでガラに当たってしまえばしゃーないわけだが、多少の礫程度なら捩り出して抜けていく。一定の深度でのN値が高くなった硬い層の解釈は難しいながらも遺構面かもしれない。機械がガラにあたって震えたり、変な音がしたり、入りにくくなるとハンマーで叩くのだが、その音がいかにも高く「硬!」と悲鳴を上げたり、なかなか反応を見ているのも楽しいもので
◆5日これで拘束されるのは、車塚があるので避けたいのだが、今日の様子を見ていると、水曜日には終わるのではないかと思われる。
クントゥルワシ通信2
◆本人に了解をもらいました。是非にとのことですので、どしどしいきましょう。
今日は博物館で必要な物資(インクなど)を買いにカハマルカまで来ています。車で2時間かからないくらいです。
カハマルカではお金も下ろせるし、ネットも通じます。ご飯食べるところもたくさんあり、なんとスタバまであります笑
村はネットのない生活ですが、本読んだり日記書いたりできて、楽しく過ごしています。良い環境だと思います。ただ、博物館の広報のためには、ネット環境の整 備が欠かせず、村の人はネットが来ることをのぞんでいます。お隣、サンパブロの町にはインターネット屋さんがありますが、よく子供がネットゲームをして遊 んでいます。難しいですね。この村も、ネットが通じると子供たちがこういうことになってしまいそうで嫌です。
今日は博物館で必要な物資(インクなど)を買いにカハマルカまで来ています。車で2時間かからないくらいです。
カハマルカではお金も下ろせるし、ネットも通じます。ご飯食べるところもたくさんあり、なんとスタバまであります笑
村はネットのない生活ですが、本読んだり日記書いたりできて、楽しく過ごしています。良い環境だと思います。ただ、博物館の広報のためには、ネット環境の整 備が欠かせず、村の人はネットが来ることをのぞんでいます。お隣、サンパブロの町にはインターネット屋さんがありますが、よく子供がネットゲームをして遊 んでいます。難しいですね。この村も、ネットが通じると子供たちがこういうことになってしまいそうで嫌です。
久津川車塚9月7日~11日の週
◆大阪城の調査、紀要編集委員会、教授会もあり、この週はほとんど行けそうにない。課題を整理しておき、原田君とミッチーに任せることにしよう。金曜日には記者発表資料と現地説明会資料も完了しておかないといけない。ちときついが。そして写真撮影の予定を設定すること。3次元計測もやりたいところ・・・。
◆ともかく、水色が手つかず、ないし、地山検出がまだ甘く、だめ押しが必要なところ。こ
れがⅠ。Ⅱ、次は前年度調査区の埴輪列の仕上げ。前年度は樹立埴輪のまわりに埴輪片が散っている状態にとどめ封をしたが、これをきっちり出さないといけない。まあ、基本的にはここまででよいと思う。Ⅲ、埋葬施設について。縦断畦を設定し、4分法で黄色粘質土を掘り上げ、畦沿いに割りを入れて墓坑の下降を確認する、という、そこまでをやってもいい。Ⅳ、それと北辺は今回の最初にはなかった範囲だが、造り出しが北に伸びることが確実となって拡張し、基部がきちんと検出されたわけだ。が、撹乱溝があって、そこの上がり位置で機械掘削をやめた。とはいえ、埴輪列が明らかになり正確に図化してみると、隅部は溝の外に残っている可能性がある。本来なら、撹乱溝はあっても、それを越えるところまで掘り(掩体壕があるので控えている)、どこからかは残存する北辺埴輪列を検出すべき。が、ここに至れば大きく広げることは無理。写真が終わり、図化にかかる段階で、屈曲部をめざし作業員さんにちょこっと掘ってもらうことに留めよう。
◆大阪城。測量器財は積んで帰ってきたが、作業内容がわかっておらず、エスロンテープとピンポールを積んで帰ってくるべきだった。さてどうするか。朝、車塚に寄ってもいいのだが、まあなんとかなるかね~。縄があればいいかも。業者がメジャーをもっていることに期待するか・・・。
◆ともかく、水色が手つかず、ないし、地山検出がまだ甘く、だめ押しが必要なところ。こ
◆大阪城。測量器財は積んで帰ってきたが、作業内容がわかっておらず、エスロンテープとピンポールを積んで帰ってくるべきだった。さてどうするか。朝、車塚に寄ってもいいのだが、まあなんとかなるかね~。縄があればいいかも。業者がメジャーをもっていることに期待するか・・・。
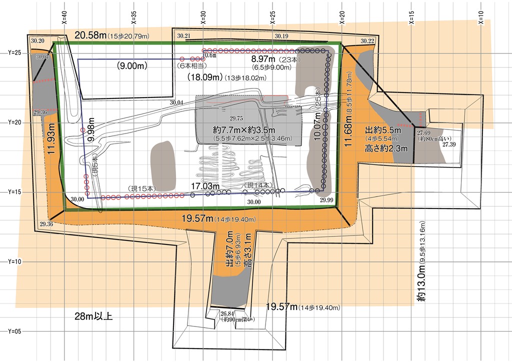
ようやっと車塚の造り出し局地座標
◆日曜日の19:30、ようやっと雑用を片づけた。車塚と大阪城の仕事はこれから。柏原の講演準備な
ど、できるはずもなく・・・。
◆車塚の局地座標を設定しました。東辺埴輪列の角度を参考とした前方部側線でもある造り出し東辺の角度が21.1度。西辺肩部が20.3度、この間でも平行ではありません。南側隅部における造り出し裾線の角度からすると22度でもよいのだが、全体のバランスから21度に決める。それと、座標値については、3箇所の葺石のみなら、それぞれ別に勝手に設定してもらってもいい。が、上面の埴輪列等の実測も、平面のみなら国土座標でいいのだが、埴輪の立面図を考えると、やはり局地座標でやる方がおそらくよいだろう。なので全域をカバーする座標系を設定する。そこで、ほぼセンター位置を設定し、その国土座標を図面から算出しておき、XY値とも+値になるよう、このポイントがX30/Y20になるように換算してもらうことにしよう。
◆葺石図はそこまでだが、上面の実測のため、座標変換の計算をしておかないといけない。こうやって眺めると、台形ですね・・・。さて、次は大阪城(21:18)。
◆大阪城のサウンディングボーリングの図面作成。大阪市I君の作成した図を自分なりにいじって確認したくらいだが、終了。配水管のみ注意し、計画線設定は、まあ適当でよさそうである。帰ろ(22:10)。
◆車塚の局地座標を設定しました。東辺埴輪列の角度を参考とした前方部側線でもある造り出し東辺の角度が21.1度。西辺肩部が20.3度、この間でも平行ではありません。南側隅部における造り出し裾線の角度からすると22度でもよいのだが、全体のバランスから21度に決める。それと、座標値については、3箇所の葺石のみなら、それぞれ別に勝手に設定してもらってもいい。が、上面の埴輪列等の実測も、平面のみなら国土座標でいいのだが、埴輪の立面図を考えると、やはり局地座標でやる方がおそらくよいだろう。なので全域をカバーする座標系を設定する。そこで、ほぼセンター位置を設定し、その国土座標を図面から算出しておき、XY値とも+値になるよう、このポイントがX30/Y20になるように換算してもらうことにしよう。
◆葺石図はそこまでだが、上面の実測のため、座標変換の計算をしておかないといけない。こうやって眺めると、台形ですね・・・。さて、次は大阪城(21:18)。
◆大阪城のサウンディングボーリングの図面作成。大阪市I君の作成した図を自分なりにいじって確認したくらいだが、終了。配水管のみ注意し、計画線設定は、まあ適当でよさそうである。帰ろ(22:10)。
プラグイン
カレンダー
カテゴリー
フリーエリア
最新コメント
最新記事
(03/16)
(03/13)
(03/13)
(03/10)
(03/10)
最新トラックバック
プロフィール
HN:
雲楽
年齢:
61
性別:
男性
誕生日:
1964/03/22
職業:
大学教員
自己紹介:
兵庫県加古川市生まれ。高校時代に考古学を志す。京都大学に学び、その後、奈良国立文化財研究所勤務。文化庁記念物課を経て、現在、大阪の大学教員やってます。血液型A型。大阪府柏原市在住。