人を幸せにする人になろう
- 日々の雑多な感想や記録を書き留めていくことにします―2008年6月~―
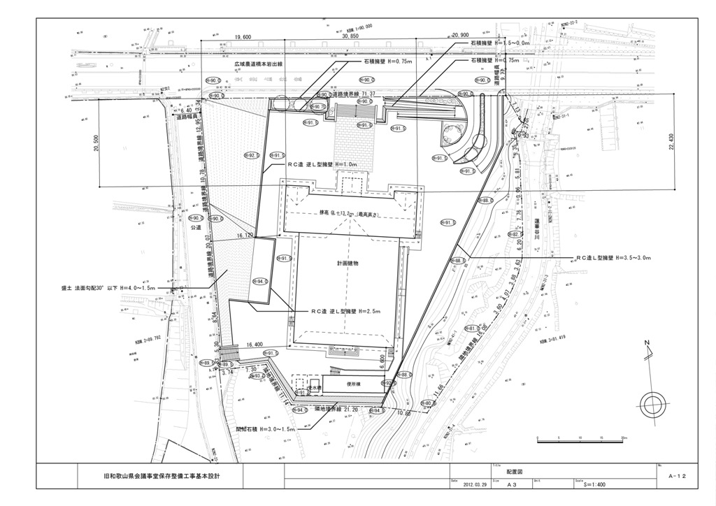
一乗閣移転工事
◆10月に移転先の造成工事の入札広告、結果は書いていないが、工期90日、始まりそうである。建物本体の解体の入
札広告もあり、これは1回目で決まらず11月に再度広告。それらの資料から図を挙げる。図面
によると、西側斜面の遺構を残す部分は、階段の部位で道路面(90m)から4mの法面をつけるが、一乗閣そのものを載せる面は1.5m(91.5m)、約100m+~約95m(西側路面からの比高さ5m~10m)にわたる尾根は、低い南側で3.5m、高い北側で約9m、ざっくりと切られることになる。
◆西縁の土塁も、中央部の段差も、東縁の土塁も、すべて未調査のまま削られる。遺物も、鯱瓦の残りの破片も含めて出土するだろう。石材も出てくるかも知れない。十字トレンチで「なにもなし」と見限られた遺跡だ。で、工事立ち会い・・・。
◆西縁の土塁も、中央部の段差も、東縁の土塁も、すべて未調査のまま削られる。遺物も、鯱瓦の残りの破片も含めて出土するだろう。石材も出てくるかも知れない。十字トレンチで「なにもなし」と見限られた遺跡だ。で、工事立ち会い・・・。
- << 和泉市史テーマ編にめどをつける
- HOME
- 新大学構想 >>
プラグイン
カレンダー
カテゴリー
フリーエリア
最新コメント
最新記事
(11/23)
(11/23)
(11/23)
(11/19)
(11/19)
最新トラックバック
プロフィール
HN:
雲楽
年齢:
61
性別:
男性
誕生日:
1964/03/22
職業:
大学教員
自己紹介:
兵庫県加古川市生まれ。高校時代に考古学を志す。京都大学に学び、その後、奈良国立文化財研究所勤務。文化庁記念物課を経て、現在、大阪の大学教員やってます。血液型A型。大阪府柏原市在住。